Healthcare

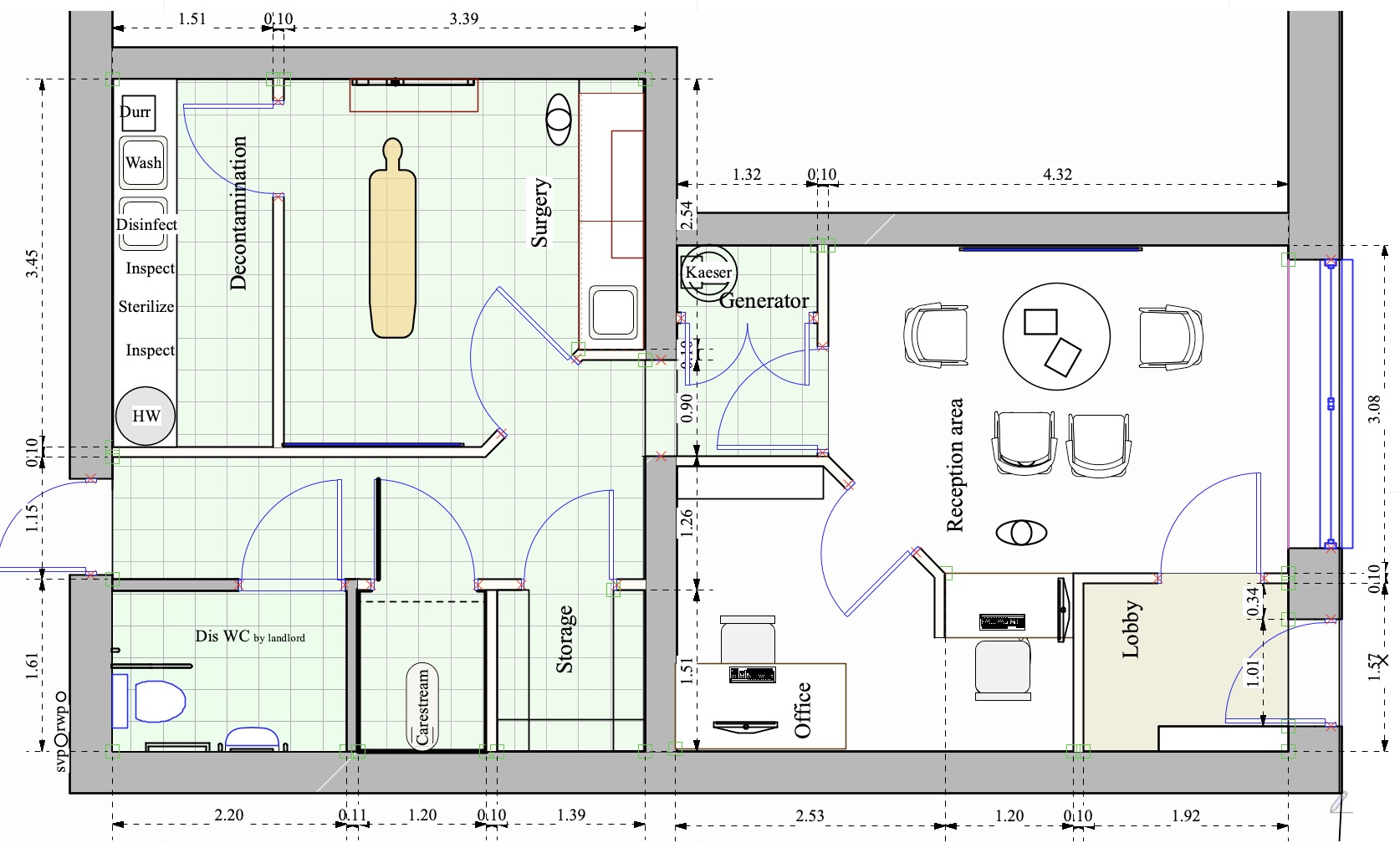
Dental practice - plan

Dental practice - plan